Apartamentul se preda mobilat si utilat exact ca in pozele de prezentare, blocul are si lift si ar exista posibilitatea de a achizitiona un loc de parcare de la dezvoltator.
Proprietatea va fi disponibila in 45 de zile din momentul semnarii contractului de vanzare.
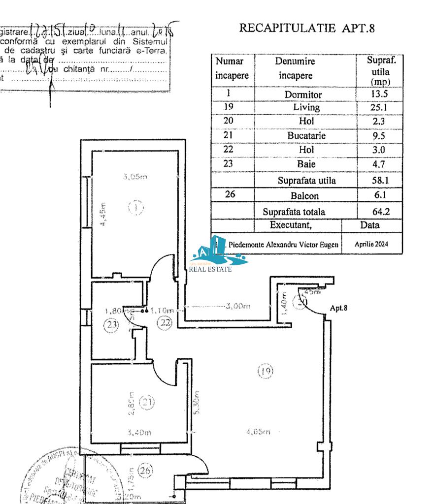
Va propunem spre vanzare apartament cu 2 camere, decomandat, confort 1 sporit, situat in cartierul , zona Pantelimon, intr-un imobil construit in anul 2023 , disponibil la etajul 2 din 3, cu o suprafata de 64 mp. Imobilul este situat in apropiere de stație de autobuz, școală, supermarket ID intern: 28686.